Biberach:
Sonnige begehrte 3 Zimmerwohnung in Biberach -Mittelberg
Objekt-Nr.: 04910

Außenansicht

Sicht zur Außenanlage

Balkon

Balkon

Wohnzimmer

Eßzimmer

Küche

Badezimmer

Schlafzimmer

Flur

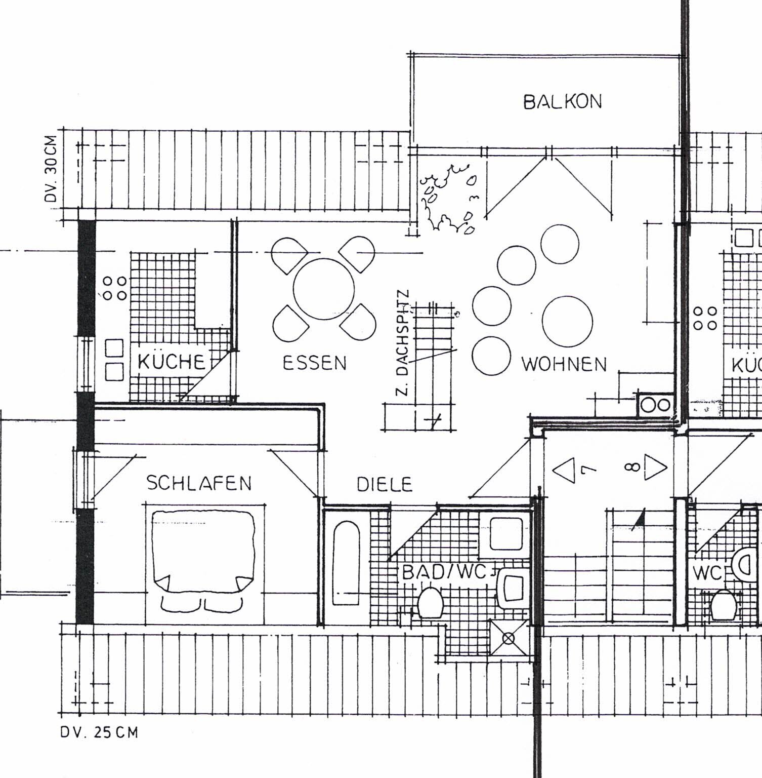
Grundriss











Preis:
229.000 €
Wohnfläche ca.:
78,51 m²
Zimmeranzahl:
3
Willkommen in Ihrer neuen Traumwohnung, die Ihnen ein warmes und einladendes Zuhause bietet. Diese 3-Zimmer-Eigentumswohnung erstreckt sich über 78,51 m² und lässt keine Wünsche offen. Mit zwei gemütlichen Schlafzimmern und einem hellen Badezimmer, das mit einer bequemen Badewanne und einem Fenster ausgestattet ist, können Sie nach einem langen Tag entspannen und in aller Ruhe die Seele baumeln lassen. Das Tageslicht, welches durch das Fenster strömt, verleiht dem Raum eine angenehme Atmosphäre und macht das Badezimmer zu einem Ort des Wohlbefindens. Ein praktisches Gäste-WC rundet das Raumangebot ab und sorgt für zusätzlichen Komfort.
Die Einbauküche ist der perfekte Ort für kulinarische Kreationen und das Wohnzimmer lädt dazu ein, gesellige Abende mit Freunden zu verbringen. Der Balkon bietet Ihnen die Möglichkeit, die frische Luft und die Sonne zu genießen. Diese gepflegte Wohnung befindet sich im Erdgeschoss eines 1973 erbauten Gebäudes.
Wohnungstyp: Etagenwohnung
Etage: 1
Etagenanzahl: 8
Provisionspflichtig: ja
Provision: 2,38% aus dem notariellen Kaufpreis
Nutzfläche ca.: 4 m²
Küche: Einbauküche
Bad: Wanne, Fenster
Anzahl Schlafzimmer: 2
Anzahl Badezimmer: 1
Balkon: 1
Gäste-WC: ja
Keller: ja
Barrierefrei: ja
Seniorengerecht: ja
Umgebung: Apotheke, Bahnhof, Bus, Einkaufsmöglichkeit, Fitness, Grundschule, Kindergarten, Kino, Krankenhaus, Nähe Schnellstrasse, Park, Polizei, Spielplatz, weiterführende Schule, Wohnanlage, Wohngegend
Anzahl der Parkflächen: 1 x Tiefgarage, pro Stück 16.000 €
Letzte Modernisierung/ Sanierung: 2004
Qualität der Ausstattung: normal
Baujahr: 1973
Hausgeld: 320 €
Bodenbelag: Parkett, Teppichboden
Zustand: gepflegt
Energieklasse: BEA
Heizung: Zentralheizung
Befeuerungsart: Gas
Energieausweistyp: Bedarfsausweis - gültig vom 30.09.2016 bis 29.09.2026
Energieeffizienz-Klasse: F
Baujahr laut Energieausweis: 1973
2,38% aus dem notariellen Kaufpreis
Die von uns gemachten Informationen beruhen auf Angaben des Verkäufers(Verkäuferin) bzw. des Eigentümers. Für die Richtigkeit und Vollständigkeit der Angaben kann keine Gewähr bzw. Haftung übernommen werden. Ein Zwischenverkauf bzw. Vermietung und Irrtümer sind vorbehalten.
Wir weisen auf unsere Allgemeinen Geschäftsbedingungen hin. Durch weitere Inanspruchnahme unserer Leistungen erklären Sie die Kenntnis und Ihr Einverständnis.
Das könnte Ihnen auch gefallen

Schmidinger Immobilien
Telefon: 07351 / 74388
Fax: 07351 / 14855
Mobil: 0162 / 695 30 30
88400 Biberach






























