Warthausen :
Ruhiges 1- 2 Familienhaus in Oberhöfen
Objekt-Nr.: 04911

Außenansicht

Terrasse

Terrasse

Außenansicht

Außenansicht

Außenansicht

Balkon

Wohnzimmer

Einbauküche

Eßbereich

Schlafzimmer

Arbeitszimmer

KInderzimmer

Flur

Badezimmer

Gäste WC

Schlafzimmer

Studio Dachgeschoss

Studio Dachgeschoss

Bad DG

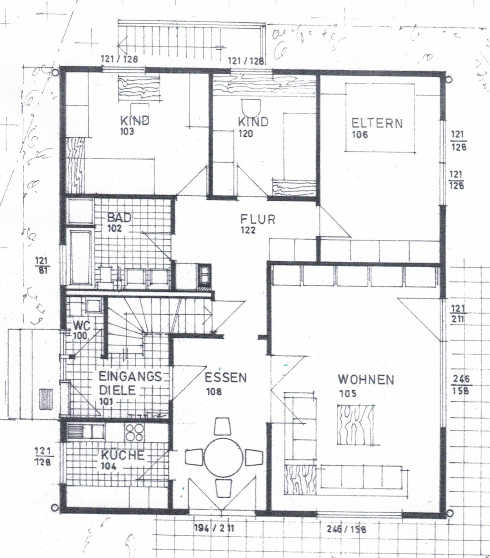
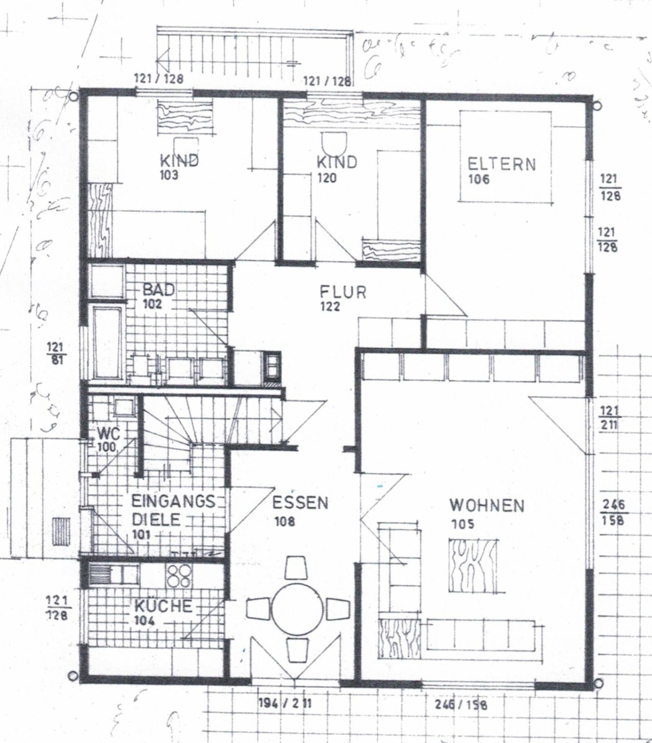
Grundriss Erdgeschoss

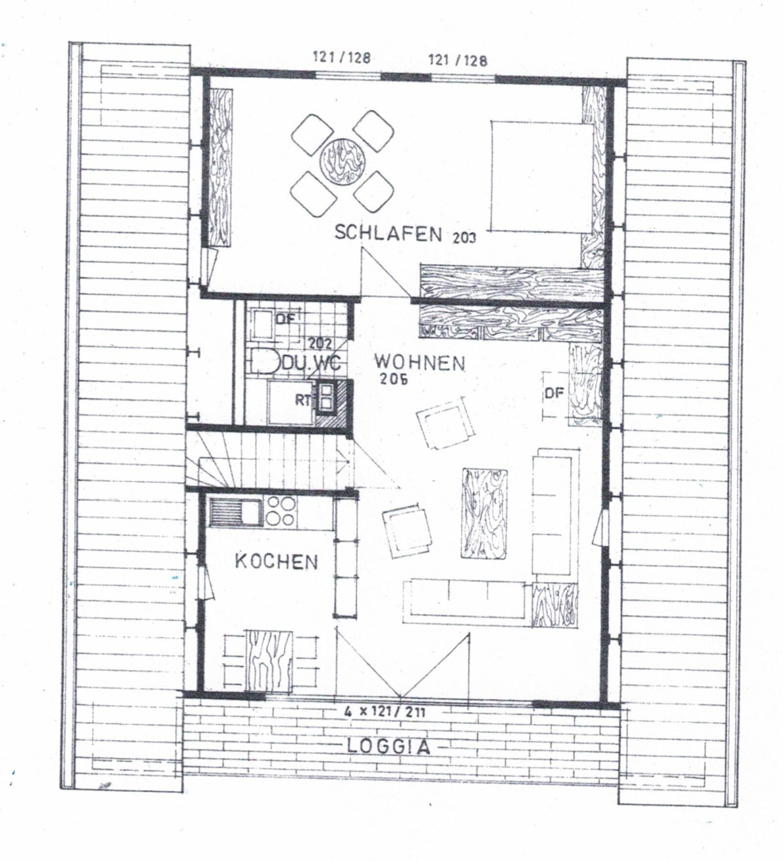
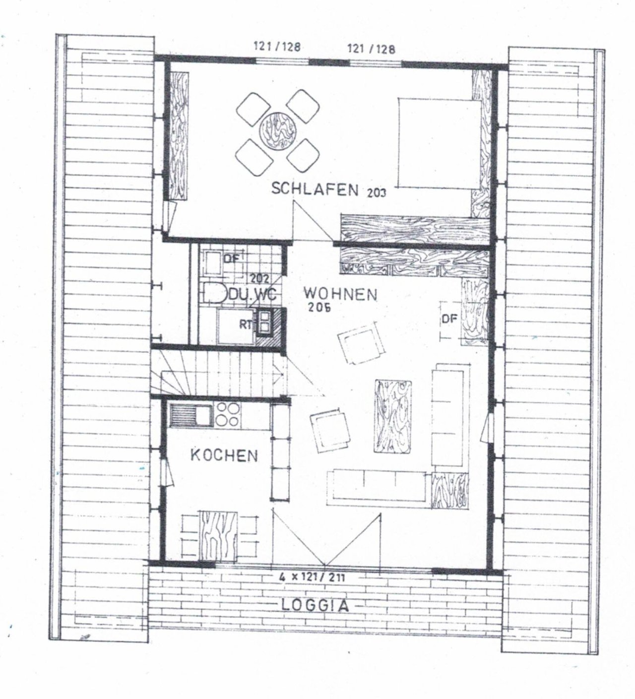
Grundriss Dachgeschoss

Grundriss Kellergeschoss























Preis:
490.000 €
Wohnfläche ca.:
201,50 m²
Grundstück ca.:
938 m²
Zimmeranzahl:
6
Willkommen in Ihrem neuen Zuhause, einem charmanten 1-2 Familienhaus, das mit seiner großzügigen Fläche von 201,50 m² und einem idyllischen Grundstück von 938 m² eine Oase der Ruhe und des Wohlbefindens schafft. Hier finden Sie genügend Platz für die ganze Familie – mit insgesamt 6 Zimmern, darunter 4 gemütliche Schlafzimmer, die zum Träumen und Entspannen einladen.
Das Haus ist wie folgt aufgeteilt :
EG : 4 Zimmer Küche Bad mit Terrasse
DG : 2 Zimmer Bad mit Balkon
Keller : 4 Kellerräume
Genießen Sie die Erholung in einem der zwei Badezimmer, eines davon mit Dusche, Wanne und einem Fenster, das Tageslicht hereinlässt und den Raum erhellt. Stellen Sie sich vor, wie angenehm es ist, nach einem langen Tag in der Badewanne zu entspannen, während das Licht durch das Fenster strömt. Ein zusätzliches Gäste-WC sorgt für praktischen Komfort.
Die gepflegte Ausstattung, kombiniert mit Bodenbelägen aus Fliesen und Teppichboden.
Haustyp: Zweifamilienhaus
Etagenanzahl: 3
Kubatur: 1.150 m³
Provisionspflichtig: ja
Provision: 2,38% aus dem notariellen Kaufpreis
Nutzfläche ca.: 100 m²
Küche: Einbauküche
Bad: Dusche, Wanne, Fenster
Anzahl Schlafzimmer: 4
Anzahl Badezimmer: 2
Balkon: 1
Terrasse: 1
Einliegerwohnung: ja
Gäste-WC: ja
Keller: voll unterkellert
Umgebung: Apotheke, Bus, Grundschule, Kindergarten, Kino, Krankenhaus, ruhige Gegend, Wald, Wohngegend
Anzahl der Parkflächen: 1 x Außenstellplatz; 1 x Garage
Qualität der Ausstattung: normal
Baujahr: 1980
Bauphase: Haus fertig gestellt
Bodenbelag: Fliesen, Teppichboden
Zustand: gepflegt
Energieklasse: BEA
Heizung: Zentralheizung
Befeuerungsart: Öl
Energieausweistyp: Energieausweis liegt zur Besichtigung vor
2,38% aus dem notariellen Kaufpreis
Die von uns gemachten Informationen beruhen auf Angaben des Verkäufers(Verkäuferin) bzw. des Eigentümers. Für die Richtigkeit und Vollständigkeit der Angaben kann keine Gewähr bzw. Haftung übernommen werden. Ein Zwischenverkauf bzw. Vermietung und Irrtümer sind vorbehalten.
Wir weisen auf unsere Allgemeinen Geschäftsbedingungen hin. Durch weitere Inanspruchnahme unserer Leistungen erklären Sie die Kenntnis und Ihr Einverständnis.
Das könnte Ihnen auch gefallen
2 Familenhaus in Altsteußlingen bei Ehingen zu verkaufen
Idylisches Haus mit Werkstatt in Warthausen

Schmidinger Immobilien
Telefon: 07351 / 74388
Fax: 07351 / 14855
Mobil: 0162 / 695 30 30
88447 Warthausen


























































