Schönebürg:
Zuhause voller Wärme und LichtCharmante Maisonette mit Wohlfühlfaktor in Schönebürg
Objekt-Nr.: 04922

Westbalkon

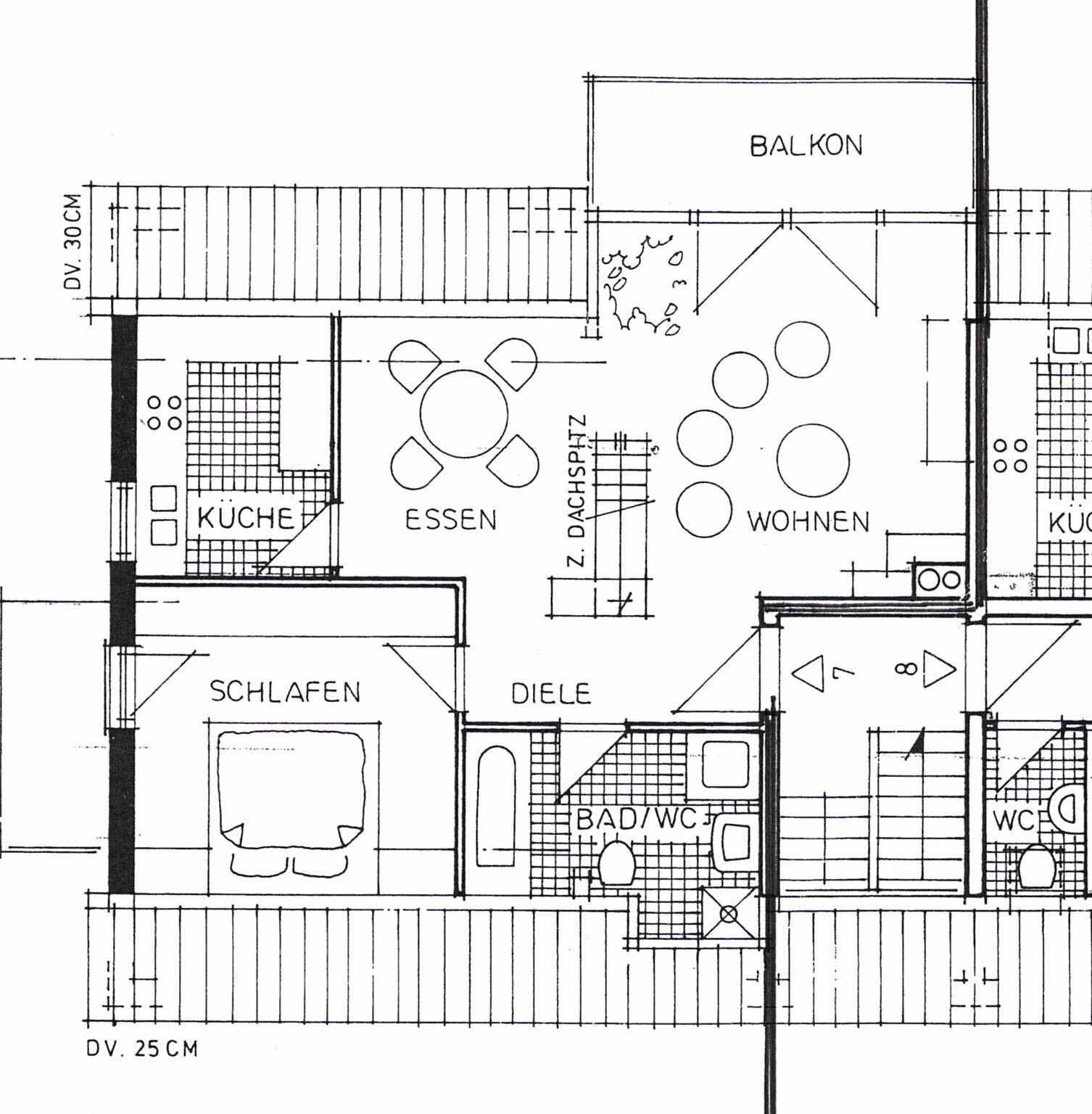
Grundriss

Südbalkon

Einbauküche

Wohnzimmer

Schafzimmer

Badezimmer

Badezimmer








Preis:
235.000 €
Wohnfläche ca.:
80 m²
Zimmeranzahl:
3
Diese charmante 3-Zimmer-Maisonettewohnung in Schönebürg verspricht ein behagliches Wohngefühl auf zwei Ebenen. Mit einer großzügigen Wohnfläche von 80 m² bietet sie Raum zum Entspannen und Leben für Singles oder Paare. Zwei einladende Schlafzimmer schaffen Rückzugsorte voller Ruhe, während das helle Badezimmer mit Dusche, Badewanne und Fenster zum Wohlfühlen einlädt. Stellen Sie sich vor, wie Sie in der Badewanne entspannen, umgeben von warmem Wasser, das alle Sorgen des Tages hinwegspült. Das Tageslicht im Badezimmer sorgt für eine freundliche Atmosphäre und macht den Raum besonders einladend.
Zwei Balkone erweitern den Wohnraum nach draußen und bieten angenehme Plätze für frische Luft und entspannte Momente.
Wohnungstyp: Maisonette
Etage: 2
Provisionspflichtig: ja
Provision: 3,57% aus dem notariellem Kaufpreis
Nutzfläche ca.: 4 m²
Küche: Einbauküche
Bad: Dusche, Wanne, Fenster
Anzahl Schlafzimmer: 2
Anzahl Badezimmer: 1
Balkon: 2
Keller: Abstellraum
vermietet: ja
Umgebung: Bus, ruhige Gegend, Wald, Wohngegend
Anzahl der Parkflächen: 1 x Außenstellplatz
Letzte Modernisierung/ Sanierung: 1990
Qualität der Ausstattung: normal
Baujahr: 1990
Hausgeld: 250 €
Mieteinnahmen p.a.: 9.720 €
Bodenbelag: Fliesen, Laminat
Zustand: gepflegt
Energieverb. Warmwasser enthalten: ja
Energieklasse: B
Heizung: Zentralheizung
Befeuerungsart: Öl
Energieausweistyp: Verbrauchsausweis - gültig vom 15.07.2025 bis 14.07.2035
Energieeffizienz-Klasse: B
Baujahr laut Energieausweis: 1960
3,57% aus dem notariellem Kaufpreis
Die von uns gemachten Informationen beruhen auf Angaben des Verkäufers(Verkäuferin) bzw. des Eigentümers. Für die Richtigkeit und Vollständigkeit der Angaben kann keine Gewähr bzw. Haftung übernommen werden. Ein Zwischenverkauf bzw. Vermietung und Irrtümer sind vorbehalten.
Wir weisen auf unsere Allgemeinen Geschäftsbedingungen hin. Durch weitere Inanspruchnahme unserer Leistungen erklären Sie die Kenntnis und Ihr Einverständnis.
Das könnte Ihnen auch gefallen

Schmidinger Immobilien
Telefon: 07351 / 74388
Fax: 07351 / 14855
Mobil: 0162 / 695 30 30
88477 Schönebürg

































