Warthausen:
Idylisches Haus mit Werkstatt in Warthausen
Objekt-Nr.: 04931

Außenansicht

Außenansicht

Garten

Außenansicht

Wohnzimmer

Wohnzimmer

Wohnzimmer

Küche

DSC02799

DSC02795

Außenansicht

Schlafzimmer

Schlafzimmer

Werkstatt














Preis:
Preis auf Anfrage
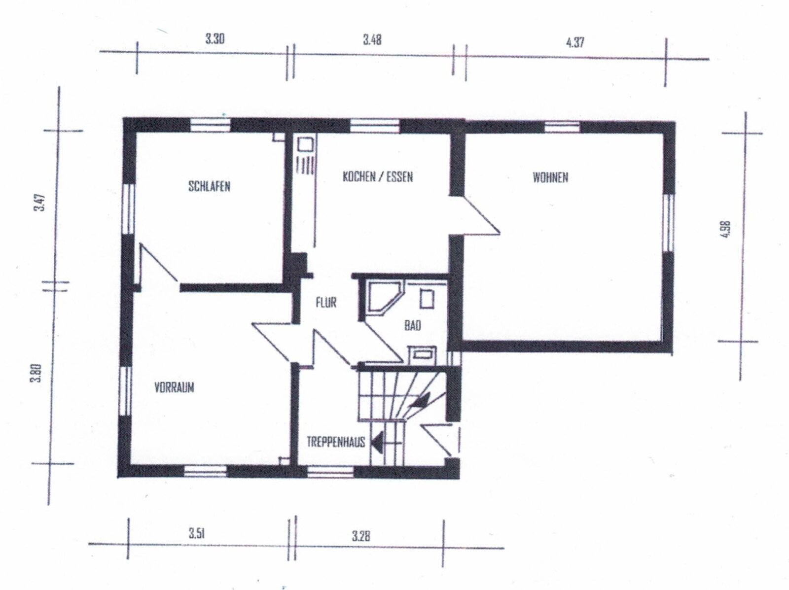
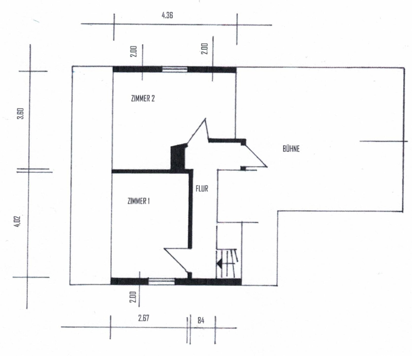
Wohnfläche ca.:
88 m²
Grundstück ca.:
470 m²
Zimmeranzahl:
3
Willkommen in diesem bezaubernden Wohnhaus, das nicht nur durch seine charmante Gestaltung besticht, sondern auch ein Gefühl von Geborgenheit vermittelt. Mit einer Wohnfläche von 88 m² über 2 Etagen bietet es Ihnen ausreichend Platz für Ihre individuellen Wohnbedürfnisse. Zwei einladende Schlafzimmer und ein Badezimmer sorgen für Entspannung Zusätzlich steht Ihnen ein praktisches Gäste-WC zur Verfügung, das den Alltag erleichtert. Die sanierte Immobilie aus dem Jahr 2010 überzeugt durch ihre besondere Lage . Am Haus ist unmittelbar eine Werkstatt angebaut mit ca 75m². Außerdem gibt es noch eine große Garage .
Ein besonderes Highlight ist der Kamin, der an kalten Winterabenden für wohlige Wärme und eine behagliche Atmosphäre sorgt. Die geschmackvollen Bodenbeläge aus Dielen, Fliesen, Laminat und Linoleum bieten nicht nur stilvolle Akzente, sondern sind auch pflegeleicht .Die zentrale Elektroheizung sorgt für eine effiziente und umweltfreundliche Beheizung des Hauses, sodass Sie sich in Ihrem neuen Zuhause rundum wohlfühlen können.
Haustyp: Einfamilienhaus
Etagenanzahl: 2
Provisionspflichtig: ja
Provision: 3,57% aus dem notariellem Kaufpreis
Nutzfläche ca.: 75 m²
Bad: Wanne, Fenster
Anzahl Schlafzimmer: 2
Anzahl Badezimmer: 1
Terrasse: 1
Gäste-WC: ja
Kamin: ja
Keller: nein
Umgebung: Apotheke, Bahnhof, Einkaufsmöglichkeit, Fitness, Kindergarten, Kino, Krankenhaus, Polizei, Post, Wald
Anzahl der Parkflächen: 3 x Außenstellplatz; 1 x Garage
Möbliert: nein
Letzte Modernisierung/ Sanierung: 2010
Qualität der Ausstattung: normal
Baujahr: 1949
Bauphase: Haus fertig gestellt
Bodenbelag: Dielen, Fliesen, Laminat, Linoleum
Zustand: saniert
Heizung: Zentralheizung
Befeuerungsart: Elektro
Energieausweistyp: Bedarfsausweis - gültig vom 01.09.2014 bis 31.08.2024
Energieeffizienz-Klasse: F
Baujahr laut Energieausweis: 1949
3,57% aus dem notariellen Kaufpreis
Die von uns gemachten Informationen beruhen auf Angaben des Verkäufers(Verkäuferin) bzw. des Eigentümers. Für die Richtigkeit und Vollständigkeit der Angaben kann keine Gewähr bzw. Haftung übernommen werden. Ein Zwischenverkauf bzw. Vermietung und Irrtümer sind vorbehalten.
Wir weisen auf unsere Allgemeinen Geschäftsbedingungen hin. Durch weitere Inanspruchnahme unserer Leistungen erklären Sie die Kenntnis und Ihr Einverständnis.
Das könnte Ihnen auch gefallen
Ruhiges 1- 2 Familienhaus in Oberhöfen
Großzügiges EFH mit Wintergarten und viel Platz für die Familie
Flexibles Haus mit 2 Einheiten in Friedrichshafen Stadtnähe

Schmidinger Immobilien
Telefon: 07351 / 74388
Fax: 07351 / 14855
Mobil: 0162 / 695 30 30
88447 Warthausen















































































