Biberach:
Projektiertes 5 Familienhaus in Biberach mit Baugenehmigung
Objekt-Nr.: 04864

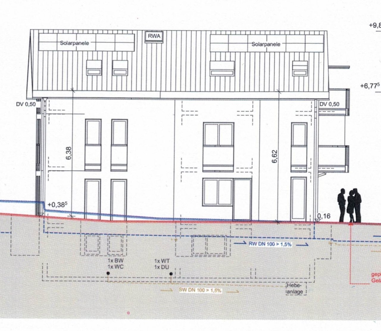
Projektierte Ansicht

Grundriss 1. Obergeschoss

Grundriss Dachgeschoss

Grundriss Untergeschoss

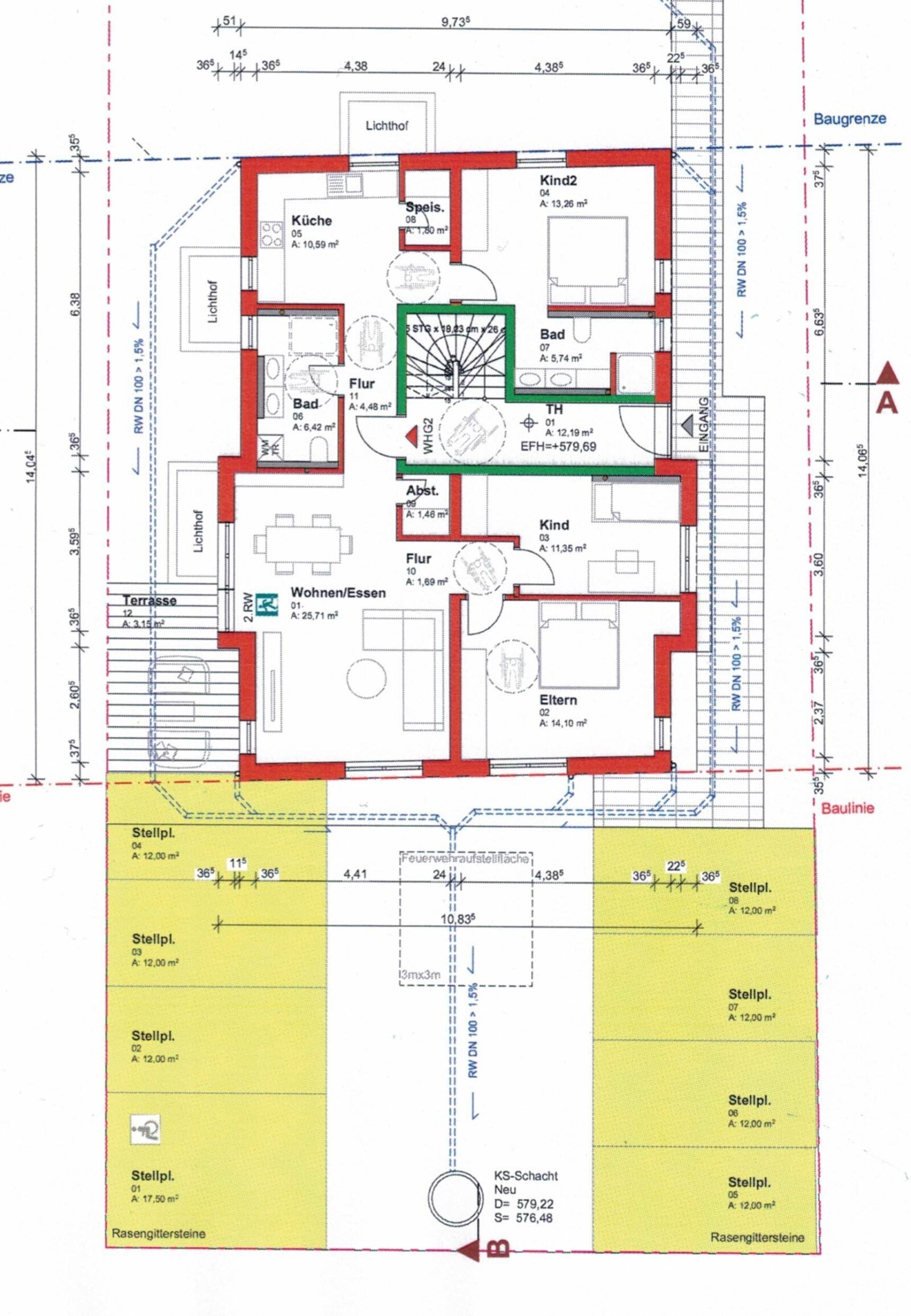
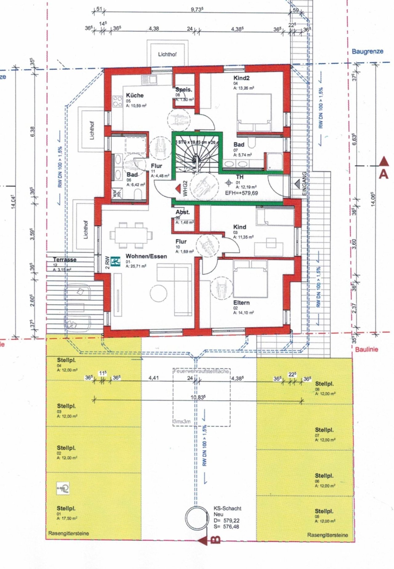
Grundriss Erdgeschoss

Ansicht Nord

Ansicht Süd

Ansicht Ost

Ansicht West

Schnitt 1

Schnitt











Preis:
Preis auf Anfrage
Wohnfläche ca.:
346 m²
Grundstück ca.:
617 m²
Zimmeranzahl:
14
**Exklusives Baugrundstück in Biberach mit Baugenehmigung für ein Mehrfamilienhaus**
Willkommen zu Ihrem neuen Projekt: Ein erstklassiges, erschlossenes Baugrundstück in der begehrten Wohngegend von Biberach. Dieses beeindruckende Grundstück bietet Ihnen auf 617 m² die perfekte Basis für Ihr Bauvorhaben. Mit einer bereits vorliegenden Baugenehmigung für ein Mehrfamilienhaus steht Ihrem Traum von einer zukunftsweisenden Immobilie nichts mehr im Wege.
Das Grundstück besticht nicht nur durch seine optimale Größe und Lage, sondern auch durch die herausragende Anbindung an alle wichtigen Einrichtungen des täglichen Bedarfs. Innerhalb weniger Gehminuten erreichen Sie Apotheken, Einkaufsmöglichkeiten und das Einkaufscenter, welches keine Wünsche offenlässt. Auch für Familien ist dieses Grundstück ideal gelegen: Ein Kindergarten sowie eine Grundschule befinden sich in unmittelbarer Nähe und gewährleisten kurze Wege für Ihre Kinder.…
Die Infrastruktur rund um das Baugrundstück könnte kaum besser sein. Der nahegelegene Bahnhof und die Busverbindungen sorgen für eine hervorragende Verkehrsanbindung, während die Nähe zur Schnellstraße eine schnelle Erreichbarkeit umliegender Städte ermöglicht. Trotz dieser zentralen Lage erwartet Sie hier eine ruhige Wohngegend, in der Sie nach einem langen Tag entspannen können.
Für Ihre Freizeitgestaltung bietet Biberach eine Vielzahl an Möglichkeiten: Sportbegeisterte kommen im nahegelegenen Fitnessstudio oder auf dem Tennisplatz voll auf ihre Kosten. Zudem gibt es zahlreiche Spielplätze für die Kleinen sowie vielfältige Freizeitangebote wie den Besuch eines nahegelegenen Parks oder verschiedener kultureller Veranstaltungen.
Biberach selbst überzeugt durch eine ausgezeichnete Infrastruktur. Neben den bereits erwähnten Einrichtungen finden Sie hier auch ein modernes Krankenhaus sowie diverse Ärzte und Fachärzte, die rund um die Uhr für Ihre Gesundheit sorgen. Die charmante Altstadt lädt zum Bummeln ein und bietet zahlreiche Cafés und Restaurants, die zum Verweilen einladen.
Kurzum: Dieses Baugrundstück in Biberach ist ein wahres Juwel und bietet Ihnen alle Voraussetzungen, um Ihr Traumprojekt zu realisieren. Nutzen Sie diese einmalige Gelegenheit und lassen Sie sich von der hervorragenden Lage sowie den vielfältigen Möglichkeiten überzeugen!
Haustyp: Mehrfamilienhaus
Etagenanzahl: 3
Provisionspflichtig: ja
Provision: 3,57% aus dem notariellem Kaufpreis
Nutzfläche ca.: 126 m²
Bad: Dusche, Wanne, Fenster
Anzahl Schlafzimmer: 9
Anzahl Badezimmer: 5
Loggia: 2
Keller: voll unterkellert
Umgebung: Apotheke, Bahnhof, Bus, Einkaufscenter, Einkaufsmöglichkeit, Fitness, Grundschule, Kindergarten, Nähe Schnellstrasse, ruhige Gegend, Polizei, Spielplatz, Tennisplatz, Wohngegend
Anzahl der Parkflächen: 6 x Außenstellplatz
Qualität der Ausstattung: gehoben
Baujahr: 2025
Bauphase: Haus in Planung (projektiert)
Zustand: Haus in Planung (projektiert)
Heizung: Zentralheizung
Befeuerungsart: Wärmepumpe
Energieausweistyp: Energieausweis liegt zur Besichtigung vor
3,57% aus dem notariellen Kaufpreis
Die von uns gemachten Informationen beruhen auf Angaben des Verkäufers(Verkäuferin) bzw. des Eigentümers. Für die Richtigkeit und Vollständigkeit der Angaben kann keine Gewähr bzw. Haftung übernommen werden. Ein Zwischenverkauf bzw. Vermietung und Irrtümer sind vorbehalten.
Wir weisen auf unsere Allgemeinen Geschäftsbedingungen hin. Durch weitere Inanspruchnahme unserer Leistungen erklären Sie die Kenntnis und Ihr Einverständnis.
Das könnte Ihnen auch gefallen
Großzügiges EFH mit Wintergarten und viel Platz für die Familie
Großzügiges 3-Familienhaus mit stilvollem Nebengebäude im Wald

Schmidinger Immobilien
Telefon: 07351 / 74388
Fax: 07351 / 14855
Mobil: 0162 / 695 30 30
88400 Biberach























































